【オススメ物件】日生三鷹マンション
物件情報
2025年10月10日
皆さんこんにちは!
武蔵野市 中古住宅リノベーションの365リノベ吉祥寺スタジオの鈴木和樹です。
本日は三鷹市下連雀エリアで、オススメ物件がございましたのでご紹介です!
以下概要になります。
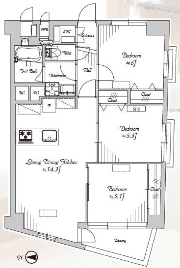
《 日生三鷹マンション 壁芯68.11㎡ 5,980万円 》
~概要~
金額:5,980万円
住所:三鷹市下連雀4丁目
交通:JR中央線 /三鷹 徒歩9分
専有面積:壁芯 68.11㎡
築年月:1972年3月 (築52年)
間取:3LDK
土地権利:所有権


中央線、総武線の利用が可能な人気の「三鷹駅」徒歩9分と好立地の物件となっております!
三鷹の中央商店街に位置しており、周辺も活気があり、スーパーや商業施設など、充実しております。
新規でフルリノベーションされているお部屋になりますので、安心して綺麗なお部屋で新生活を
迎えることが可能となっております。
気になる方は、是非一度ご内見ください!お問い合わせお待ちしております。